Durata de livrare: La comandă
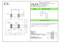
Bare paralele curbate C-055
Barele paralele curbate C-055 sunt o alegere ideală pentru antrenamentul diferitelor grupe musculare și exersarea elementelor statice.
Bare paralele oferă o sarcină eficientă asupra mușchilor pieptului, umerilor și abdomenului, fiind potrivite pentru flotări la paralele, stand pe mâini, ridicări de picioare și alte exerciții care dezvoltă forța, rezistența și coordonarea. Construcția este conceput pentru utilizare intensivă în aer liber și se potrivește perfect în terenuri de sport, parcuri, școli și spații rezidențiale.
Materiale:
Dimensiuni: 1800 x 600 mm
Înălțime: 1320 mm
Pentru a vizualiza galerie, accesați link-ul 👉 Galerie — Complexe WORKOUT / WORKOUT-KIDS PLAYPARK

Opțiuni: Bare paralele
Grupe de vârstă: de la 5 ani
Materiale și construcție: Otel acoperit cu pulbere
Piese de schimb disponibile: Da
Garanție:
este
Capacitate: